Locale d'epoca già adibito ad attività di ristorazione

350.000 €
310 m²
Superficie
5
Locali
3
Bagni
in vendita
negozio
Acquaviva delle Fonti
Descrizione
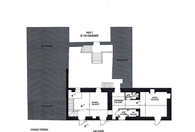
Nel cuore della città proponiamo un raffinato immobile d’epoca di circa 310 metri quadri complessivi al lordo di murature, distribuiti su due livelli e già destinato in passato alla ristorazione. Gli ambienti, impreziositi dalle suggestive murature in pietra e dagli archi a croce a vista, offrono un’immediata sensazione di autenticità e carattere, lasciando intravedere ampie possibilità di reinterpretazione.

La proprietà dispone di tre bagni con antibagno, uno dei quali predisposto per persone con disabilità, e garantisce massima comodità grazie alle tre uscite su Via Miulli dotate di maniglione antipanico e alle ulteriori tre aperture rivolte verso il cortile interno. Un montacarichi interno collega in maniera discreta la cucina al piano interrato, mentre la predisposizione per la canna fumaria consente di immaginare diversi scenari di utilizzo.

Con pochi e mirati interventi, l’immobile può ritrovare piena operatività, rivelandosi una soluzione dal fascino intramontabile, ideale per chi desidera dare forma a un progetto in un contesto d’epoca di grande prestigio.
Caratteristiche principali
Codice:
V000232
Città:
Acquaviva delle Fonti
Categoria:
Negozio
Locali:
5
Bagni:
3
Mq:
310
Classe energetica:
G
Stato Immobile:
Discrete Condizioni
Grado:
Signorile
Posizione:
Centro Storico
Lati Liberi:
2
Planimetrie
Mappa
Vico Piazza Garibaldi, 2 - Acquaviva delle Fonti (BA)
Richiedi informazioni
Cookie preference